以用户需求为核心,打造人性化、个性化与智能化卫浴空间 以用户需求为核心,打造人性化、个性化与智能化卫浴空间

以用户需求为核心,打造人性化、个性化与智能化卫浴空间

案例介绍

案例介绍 案例介绍
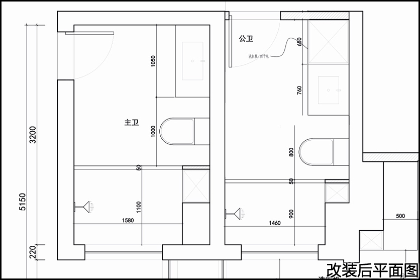
改装后平面图

改造诉求

业主希望进行以下改造:一是更新老化管道,改造电路水路系统;二是提升住宅智能化水平,增强智能产品使用体验; 三是增设福祉设施,提高生活便利性;四是因原线路负载不足,需对线路进行全面改造。

设计师TALK

设计理念

设计的核心价值是帮客户解决问题,房子格局如人体般重要,需先满足基本需求,再确定装修风格。

设计公司账号
小红书号:FCSpace10,抖音号:FCS10
设计总监:陈煌坚

设计理念

设计的核心价值是帮客户解决问题,房子格局如人体般重要,需先满足基本需求,再确定装修风格。

设计公司账号
小红书号:FCSpace10,抖音号:FCS10

设计师采访Q&A

Q1:您如何理解设计?您一直坚持的设计理念和设计价值是什么?
A:我认为设计的最大价值在于帮助客户解决问题。就像房子和人一样,房子的格局就像人的身体一样重要。格局首先要满足使用者的基本需求,这是基础。 在格局确定后,我们给房子“穿衣服”,不同的装修风格会带来不同的视觉体验。

Q2:可以简要叙述一下此次项目吗?业主对于卫浴空间的改造诉求是什么?
A:我们这次改造的房子使用年限较久,存在水管老化、卫生间漏水等问题。由于之前没有经过专业设计,整体布局显得凌乱,收纳功能也不足。这些都是业主迫切想要解决的问题。

Q3:此次改造中遇到的最大的挑战是什么?又是如何解决的?
A:这次改造属于局部翻新,相比整屋装修,局部翻新的局限性更大,问题也更复杂。我由于是局部翻新,我们只能在原有小面积的卫生间空间内进行改造。 为解决这一问题,我们充分利用每一寸空间,通过精细规划和设计,实现了空间的最大化利用,从而克服了这一挑战。

Q4:在设计每个功能区的时候,是如何实现每个家庭成员的诉求的?
A:在设计功能区时,我们充分考虑了业主家庭成员的诉求。针对家庭成员结构,我们在主卫特别设计了无障碍淋浴房,并增设了扶手,以确保使用安全与便利。 同时,我们巧妙利用包管空间,增设了壁龛,从而有效提升了整个卫浴空间的收纳能力,满足了家庭成员对实用性和舒适度的双重需求。

Q5:请问如何平衡客户的需求与设计师的个性?
A:我们是做家装的,家装使用者并不是设计师本身,所以作为设计师,我们的出发点还是要站在客户使用的角度上去考虑。 首先,我们要满足客户的基本使用需求。在满足这个前提下,我们再提出更好的优化方案,并进行设计和改造。

Q6:您选购家居建材产品的标准是什么?
A:以卫浴为例,我们更注重产品的品质和售后。如果后期使用中出现问题,我们希望能第一时间找到人去解决问题。其次,产品的颜值也要在我们的审美范围内。

Q7:您如何评价TOTO产品的?
A:这几年我们的客户选择TOTO产品的占大部分,大部分客户对TOTO的产品还是非常满意的。TOTO的产品种类非常多,能满足大部分客户的要求。 特别是TOTO的智能化马桶,在国内来说比较先进,而且TOTO的洁具釉面质量也是值得信赖。

Q8:你自己是如何评价这个项目中卫浴空间的设计和改造结果的?
A:通过这次的改造,客户的几个问题,如漏水、水管老化以及收纳空间不足都得到了解决。客户对此也非常认可,我认为这就是我们比较成功的地方。

Q9:您认为未来卫浴空间的设计趋势是什么?
A:我认为未来卫浴空间的设计趋势可以用三个词来概括:人性化、个性化和智能化。 人性化主要是从安全性和无障碍方面考虑;个性化则通过定制满足不同人群的审美需求;智能化则通过智能家居的联动实现卫浴空间的控制及场景的切换。

采访:腾讯家居

改装简介

多图展示 arrow

改装使用单品

诺锐斯特智能全自动 一体型电子坐便器AS 诺锐斯特®智能全自动 一体型电子坐便器AS
铜合金台式单柄双控洗面器抽取式水嘴 铜合金台式单柄双控洗面器抽取式水嘴
单柄恒温淋浴暗装普通水压水嘴 单柄恒温淋浴暗装普通水压水嘴
滑动式淋浴支架 滑动式淋浴支架
壁挂式手持花洒 壁挂式手持花洒
浴室取暖干燥机 浴室取暖干燥机
木制L型扶手 木制L型扶手
多用途扶手 多用途扶手
落地式台盆柜 落地式台盆柜

更多内容

查看更多

了解更多

搜索门店 搜索门店

查找您身边的门店

立即搜索